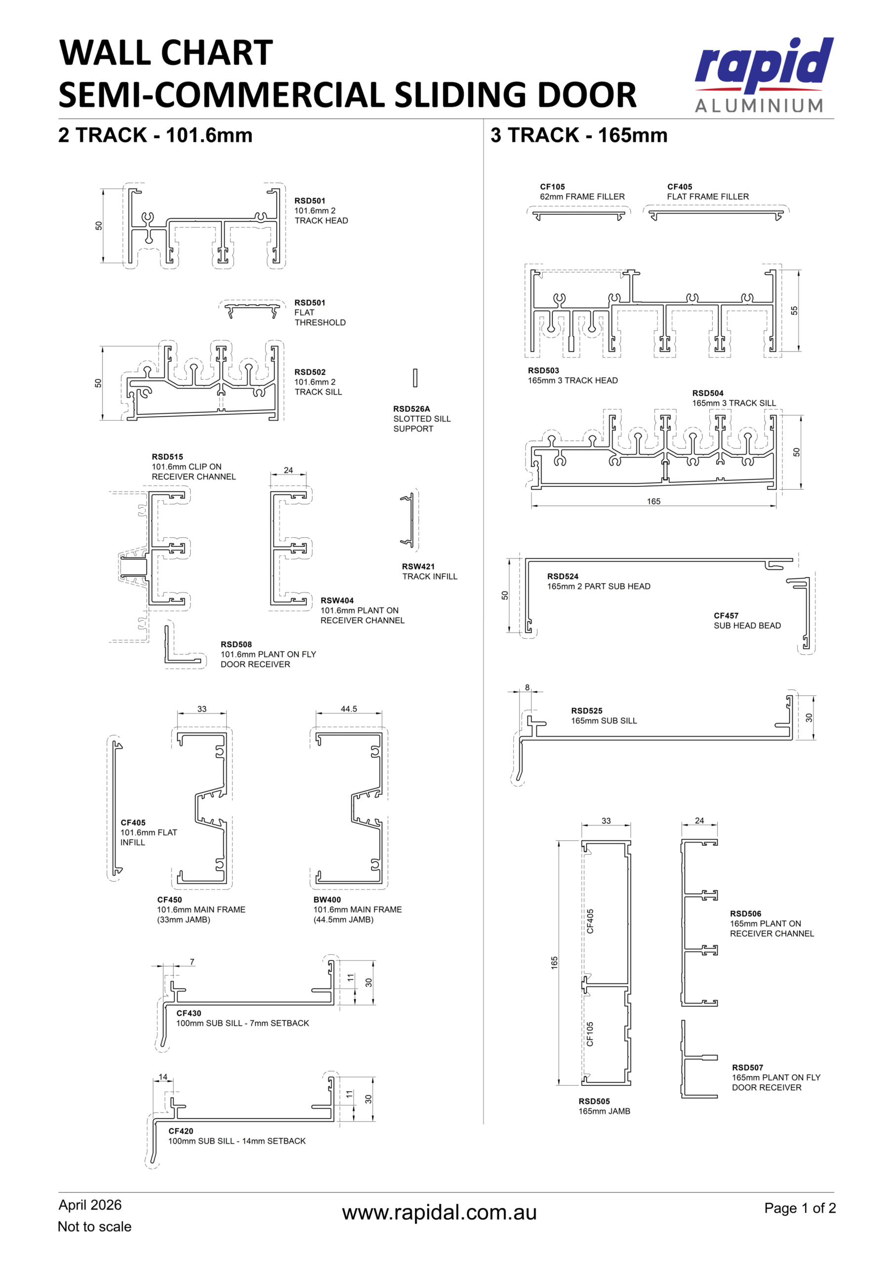
Designed for high-end residential developments and projects demanding superior performance, the Semi-Commercial Sliding Door combines modern aesthetics with robust functionality.
Purpose-built for Australian conditions, this door system has been rigorously tested and surpasses the requirements of Australian Standard AS2047, ensuring exceptional performance in air, water, and structural integrity.
For more details including specification, performance and configurations, please refer to the technical manual



