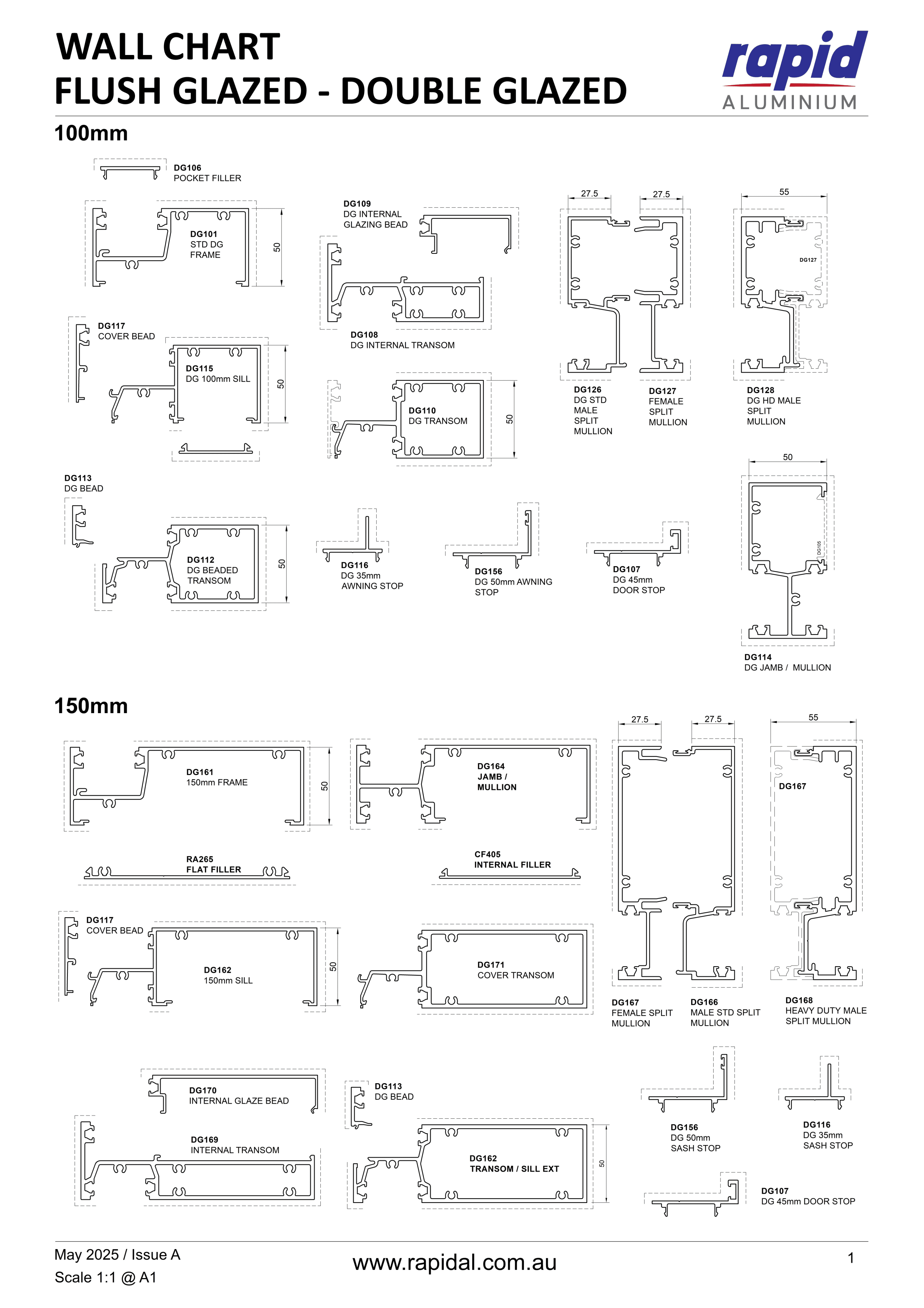
Rapids 100mm Flush Glazed Framing System is a strong and stylish choice for commercial buildings, shopping centres, and high-end homes. Designed and made in Australia, it meets and exceeds AS2047 standards for quality and performance.
Its straight-cut design and flush glazing give a clean, modern look that architects and designers are looking for. The system supports a wide range of double glazed options, helping improve energy efficiency and comfort.
With several self-draining sub sill options and easy integration with Rapid’s windows and doors, it’s a flexible and reliable solution for any commercial project.
For more details including specification, performance and configurations, please refer to the technical manual



