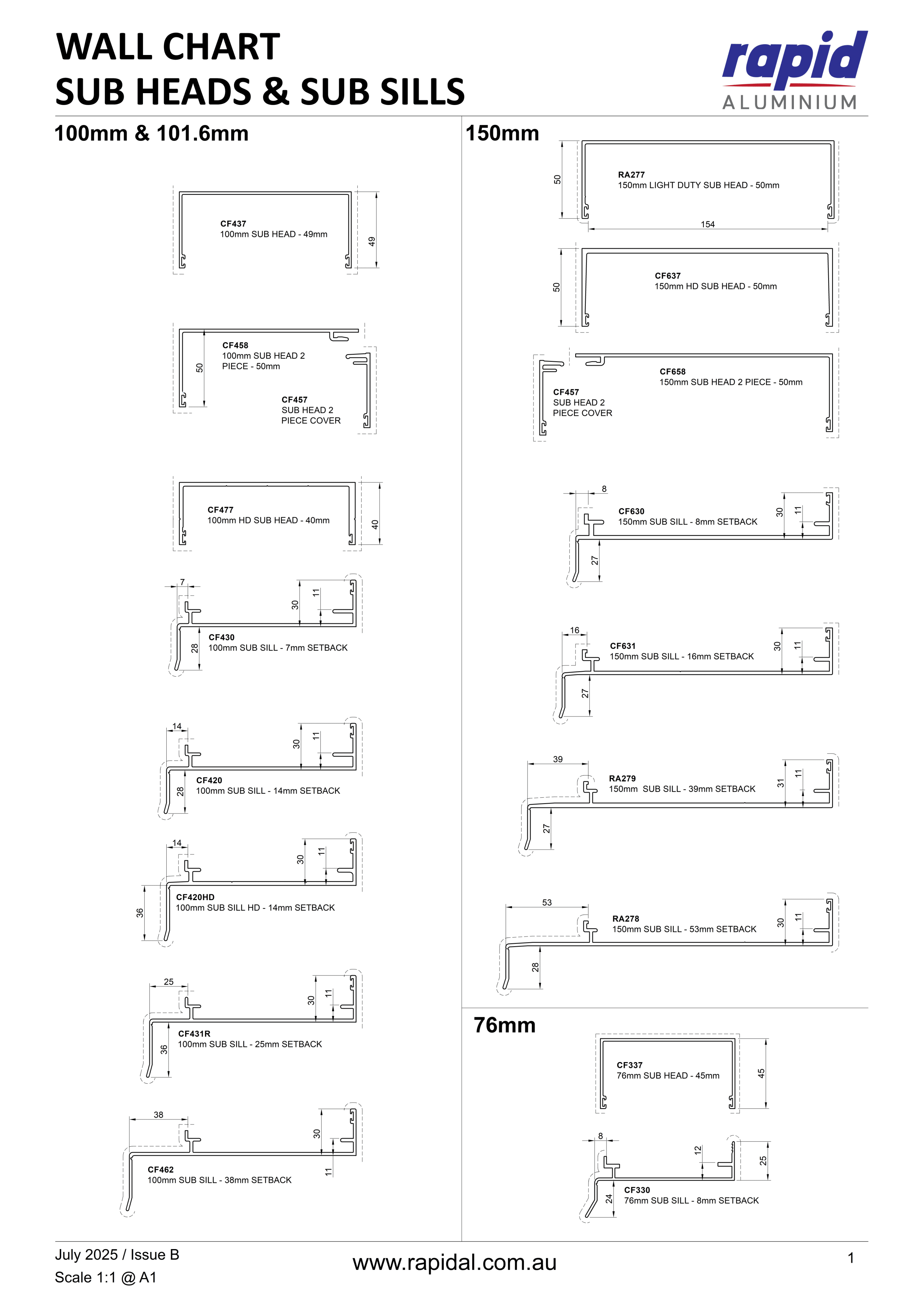
Rapids 150mm Centre Glazed System is a top choice for shopfront applications with large expansive openings. It offers clean aesthetics with straight cuts and a centre pocket glazing design that ensures both visual appeal and ease of fabrication and installation.
Compatible with a variety of glass thicknesses, it features multiple self-draining sub sill options to suit different project needs. This system integrates seamlessly with Rapid’s window and door offerings, making it a flexible and efficient choice for commercial builds.
For more details including specification, performance and configurations, please refer to the technical manual



