The Rapid 101.6mm Centre Glazed System is a leading choice for shopfront applications, offering a refined balance of form and function. It features clean lines, straight cuts, and a centre pocket glazing design that enhances both visual appeal and ease of fabrication and installation.
Engineered for versatility, the system supports a wide range double glazing options, making it ideal for projects with energy efficiency requirements.
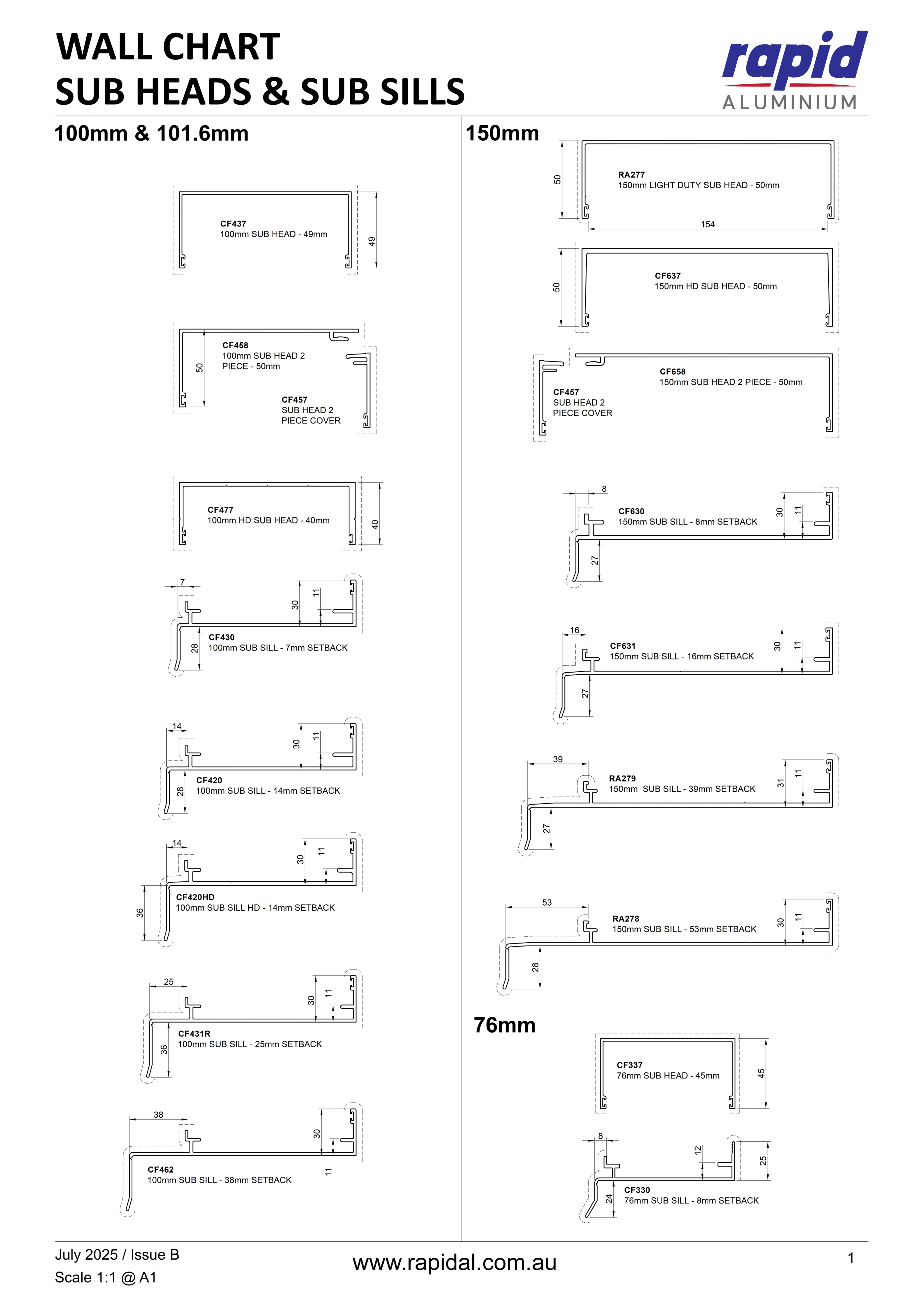
With multiple self-draining sub sill options available, the system adapts easily to various project needs. It also integrates seamlessly with Rapid’s window and door systems, providing a cohesive and efficient solution for modern commercial builds.
For more details including specification, performance and configurations, please refer to the technical manual



